













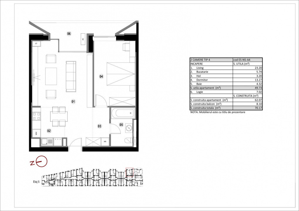
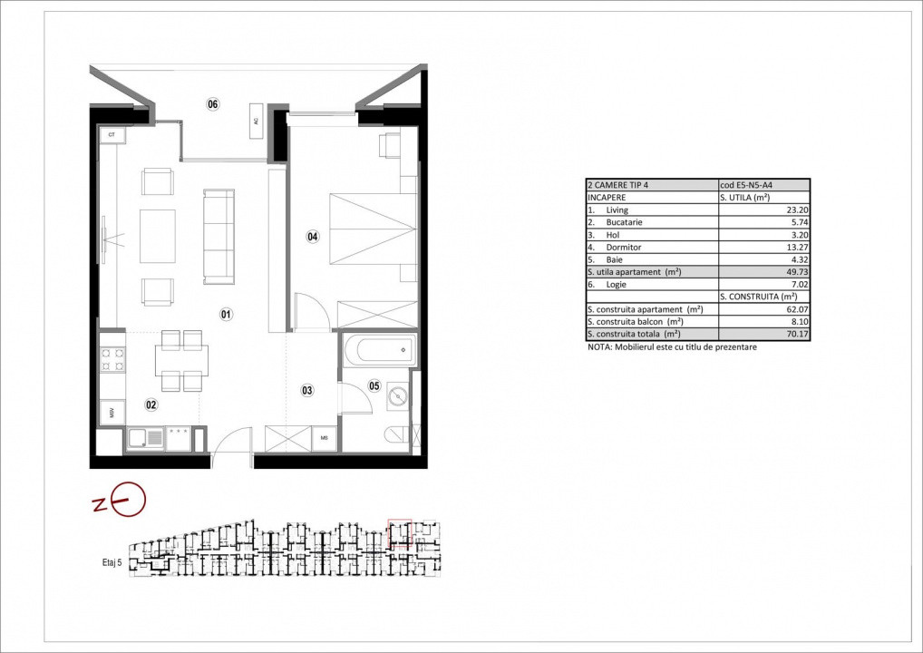
Redwood Real Estate Solutions va oferă spre vânzare un deosebit apartament de 2 camere situat în ansamblul 102 the Address. Apartamentul este complet mobilat și utilat lux si beneficiaza si de un balcon cu ieșire atat din living, cât si din dormitor cu vedere spre str. Turnul Eiffel. Separat, se poate achizitiona si un loc de parcare. Locul de parcare costa 15.000€ + TVA.
102 The Address aduce un stil modern şi inovator, care să te inspire în momentele pe care le petreci acasă, cu familia sau prietenii și îşi doreşte să inoveze prin design modern, spaţii generoase şi confort.
Parcarea este supraterană şi subterană, pe trei niveluri, cu un total de 503 locuri de parcare. Facilităţile şi finisajele aduc o calitate premium: termosistemele de ventilaţie şi materialele din aluminiu ale faţadei, balustradele din sticlă laminate, ascensoarele tip duplex Schindler.
-Gresia şi faianţa redau fineţea brandurilor italiene Porcelanosa şi Marazzi.
-Parchetul triplu stratificat de 14 mm din lemn natural aduce un plus de confort şi calitate.
-Centrala proprie Buderus, cu boiler încorporat, îţi asigură temperatura ideală pentru a te bucura de atmosfera plăcută de acasă.
-Sistemul sanitar este completat cu produse de brand Villeroy & Boch, Laufen, Duravit, Kludi, Grohe sau Hans Grohe.
-Corpurile de iluminat poartă marca Pelsan sau Arlight.
-Sistemul electric respectă standardele Legrand
-Compartimentările interioare sunt realizate cu materiale din gama de top a producătorilor Siniat şi Rigips.
Acum că ai aflat totul legat de calitatea spaţiilor pe care ţi le punem la dispoziţie, alegerea îţi aparţine.